Appartement 02 op de eerste verdieping van residentie Maryman

Ref 4131
Lindenstraat 1B103, 9100 SINT-NIKLAAS € 345.000
Bouwjaar 2026
Bewoonbare oppervlakte 158 m²
Terrein oppervlakte 370 m²
Oppervlakte bebouwd 370 m²

Meer eigenschappen

Type Gesloten
Orientatie achtergevel Zuidwest
Staat Nieuwbouw
Elektriciteitskeuring Ja, conform AREI
Verwarming Warmtepomp
Dak Zadeldak (Pannen)
Ramen Pvc
Beglazing Dubbel
Zonnepanelen Ja
Bouwvergunning Ja
Stedenbouwkundige bestemming Woongebied
Verkavelingsvergunning Ja
Dagvaarding Niet van toepassing
Voorkooprecht Niet van toepassing
Risico voor overstromingen Nee

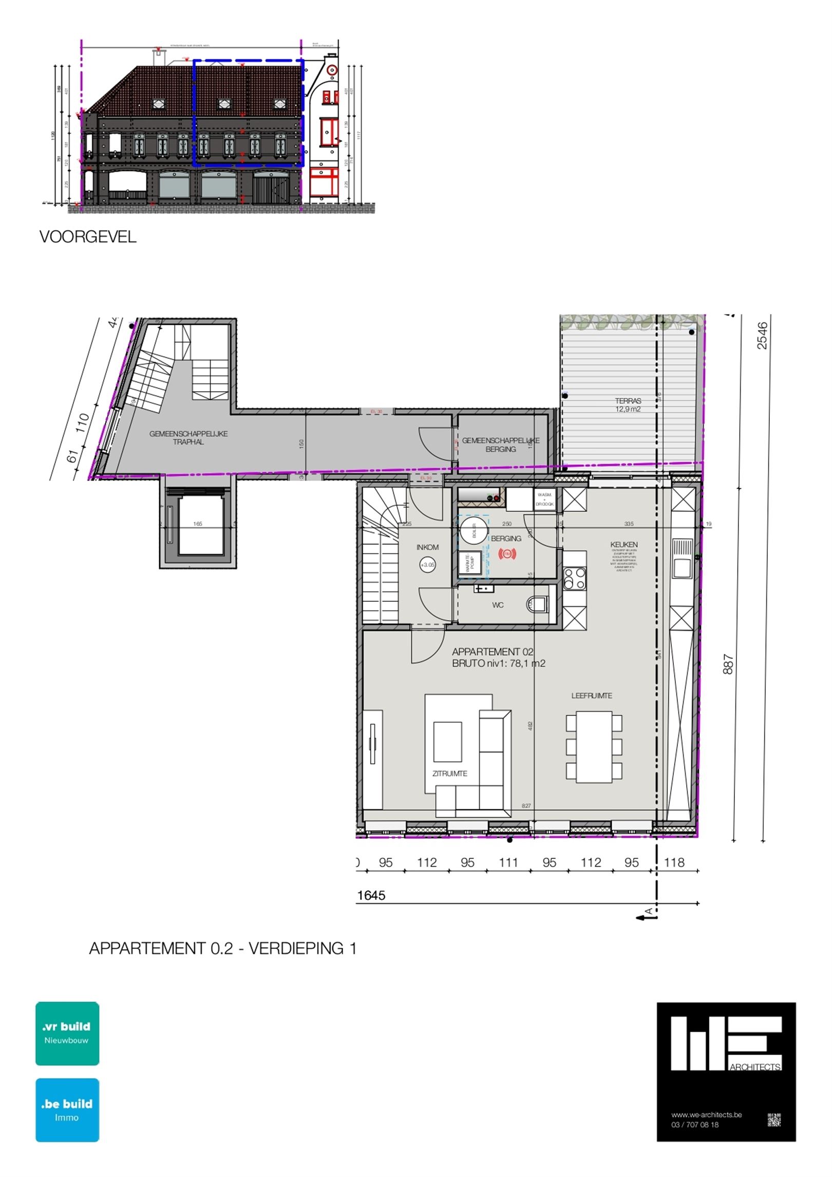
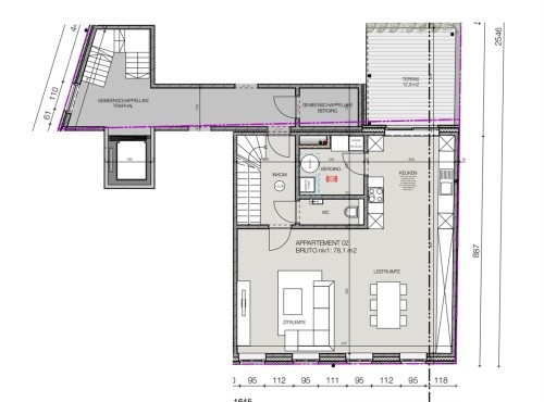
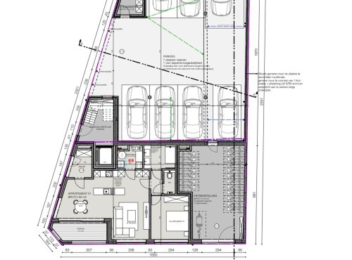
Duplex appartement op de eerste verdieping dat deel uitmaakt van residentie Maryman gelegen op de hoek van de Antwerpse Steenweg met de Lindenstraat te Sint-Niklaas met 4 wooneenheden. U beschikt over een aangenaam terras en u heeft de mogelijkheid om een overdekte parkeerplaats aan te kopen.

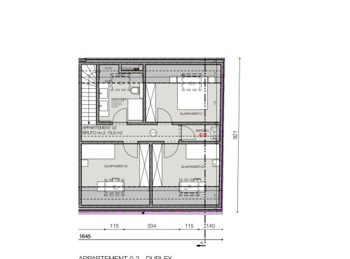
De indeling van het pand is als volgt: Zowel met de trap als via de lift bereikt u het appartement. De private inkomhal beschikt over een gastentoilet en de vaste trap naar het de volgende verdieping. Verder door komt u terecht in de living, de open keuken met aanpalende berging en de eetkamer. Vanuit de keuken kan u via het grote schuifraam naar het fijne terras. Op de volgende verdieping zijn er op de nachthal drie slaapkamers, een badkamer en een bergruimte gelegen.

Het appartement dient nog opgericht te worden, u kan dus nog steeds alle keuzes zelf maken.

Nog enkele troeven van dit pand: Vloerverwarming met lucht/water warmtepomp, een laag energiepeil conform de geldende normen, de mogelijkheid tot aankopen van een overdekte parkeerplaats aan € 7.500,00. Als we spreken over de prijs is dat exclusief btw, zonder registratie- en notariskosten! De plannen & lastenboek zijn op afspraak en zeer vrijblijvend te bekijken.

Appartement 02 op de eerste verdieping van residentie Maryman


Interesse in dit pand? Wacht niet tot het te laat is.

Contacteer ons vandaag nog voor een bezoek of meer info.
Bezorg ons uw gegevens of bel 03 775 58 00.

Voornaam (*)
Naam (*)
E-mail (*)
Telefoon (*)
Vraag of opmerking (*)