Lot 12 van Project Two-H

Ref 4096
Stuurstraat 9, 9120 HAASDONK € 665.000
Bouwjaar 2026
Bewoonbare oppervlakte 195.6 m²
Terrein oppervlakte 551.75 m²

Meer eigenschappen

Type Halfopen
Orientatie achtergevel Noordwest
Staat Nieuwbouw
Elektriciteitskeuring Ja, conform AREI
Verwarming Vloerverwarming
Dak Strodak (Riet/stro)
Ramen Pvc
Beglazing Dubbel
Bouwvergunning Nog niet aangevraagd
Stedenbouwkundige bestemming Nog niet aangevraagd
Verkavelingsvergunning Nog niet aangevraagd
Dagvaarding Nog niet aangevraagd
Voorkooprecht Nog niet aangevraagd
As-builtattest Ja

Twee voldoende ruime woningen die gezelligheid en sfeer uitstralen.

Wat gebouwd wordt moet mooi zijn. Twee-onder-één-dak woningen met karaktervolle elementen. Een intieme leefomgeving en comfortabele elegantie.

Architectuur en afwerking.
Ontworpen door gekend bureau CAS architecten. Een divers en dynamisch bureau dat staat voor architectuur waarbij vorm, context en beleving hand in hand gaan. Op zoek naar balans en juiste verhoudingen zijn ruimtegevoel, lichtinval en doorzichten essentieel.
In samenwerking met onze vaste aannemers zullen exterieur en interieur zij aan zij gaan. Door steeds onze lat hoog te leggen ligt onze ‘standaard’ boven standaard. De focus leggen we op een hoge woonkwaliteit met een uitzonderlijke afwerkingsgraad, van een totaal afgewerkte oprit met aangelegde tuin tot het stenen blad op jouw keukenaanrecht.

Het bosrijke Haasdonk.
Gelegen in dé Stuurstraat met verschillende delicatessezaken, winkels, scholen en sportgelegenheden, wandel- en fietsroutes op zeer korte afstand. Een uitstekende bereikbaarheid naar Gent en Antwerpen via de E17.

Gezelligheid en sfeer.
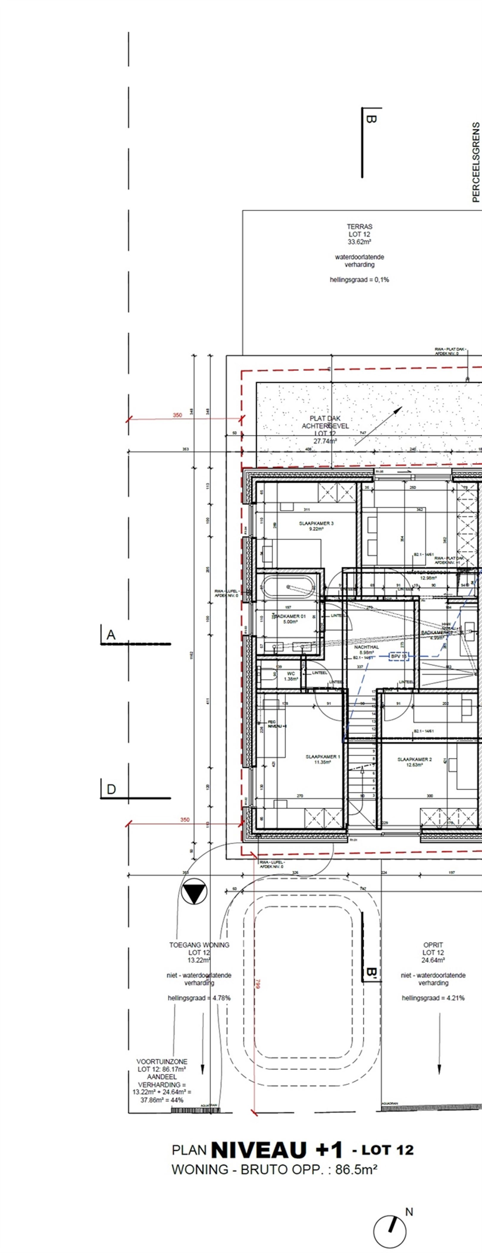
Karaktervolle architectuur in een intieme leefomgeving. U betreedt woning lot 12 via het organische aangelegd toegangspad. Logischerwijs komt u terecht in de inkomhal met gastentoilet en vestiairemogelijkheden. De berging en inpandige garage zijn voldoende ruim en bieden heel wat opslagruimte. Eens in de open keuken en eetplaats heeft u zicht op de zijtuin. Een zeer open keukenruimte die u met de nodige eigenheid kan ontwerpen. De zitruimte heeft zicht op de groene achtertuin die toegankelijk is via kamerhoge raampartijen.

Rustig en comfortabel.
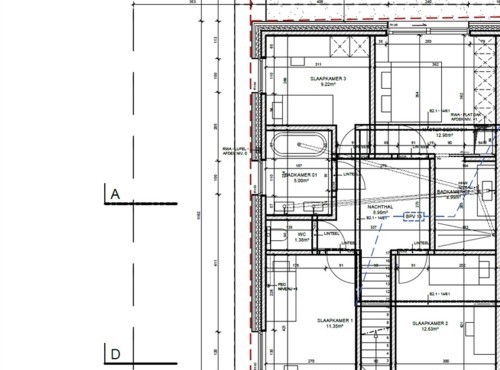
De nachthal op de eerste verdieping geeft toegang tot zes verschillende ruimtes. Vier fijne slaapkamers, waarvan één master bedroom met directe toegang naar de private badkamer. Verder is er nog een tweede badkamer en een apart toilet.

Duurzaam en energie-efficiënt wonen.
Twee woningen uitgerust met verschillende moderne technieken met het oog op de toekomst.
Beide woningen worden uitgerust met een lucht-water warmtepomp, vloerverwarming en koeling, een ventilatiesysteem type D en zonnepanelen.

Oor naar het ganse verhaal van Project Two-H? Spreek af met de gepassioneerde bestuurder om de plannen, de alleszeggende maquette en het lastenboek in te kijken.

info@dmbuild.be
+32 (0)473 37 05 69
www.dmbuild.be

Lot 12 van Project Two-H


Interesse in dit pand? Wacht niet tot het te laat is.

Contacteer ons vandaag nog voor een bezoek of meer info.
Bezorg ons uw gegevens of bel 03 775 58 00.

Voornaam (*)
Naam (*)
E-mail (*)
Telefoon (*)
Vraag of opmerking (*)