Lot 6A van Project Four-H

Ref 4015
Melselestraat 3, 9120 HAASDONK € 585.000
Bouwjaar 2026
Bewoonbare oppervlakte 154.1 m²
Terrein oppervlakte 399.2 m²

Meer eigenschappen

Type Halfopen
Orientatie achtergevel Zuidoost
Staat Nieuwbouw
Elektriciteitskeuring Ja, conform AREI
Verwarming Vloerverwarming
Dak Plat dak
Ramen Alu
Beglazing Dubbel
Bouwvergunning Ja
Stedenbouwkundige bestemming Nog niet aangevraagd
Verkavelingsvergunning Ja
Dagvaarding Niet van toepassing
Voorkooprecht Niet van toepassing
Risico voor overstromingen Nee

Vier woningen waar oog voor detail en kwaliteitsvol wonen centraal staat.
In het dorpscentrum van Haasdonk gelegen met jawel, eigen parkeergelegenheid bij iedere woning. De aangename tuinen maken het extra fijn om hier te wonen. Vier unieke woningen, een aangenaam samenspel van licht en ruimte. Hoogwaardige, zachte en warme materialen zorgen dan weer voor de nodige rust en eenvoud.

Architectuur en afwerking.
Ontworpen door gekend bureau CAS architecten. Een divers en dynamisch bureau dat staat voor architectuur waarbij vorm, context en beleving hand in hand gaan. Op zoek naar balans en juiste verhoudingen zijn ruimtegevoel, lichtinval en doorzichten essentieel.
In samenwerking met onze vaste aannemers zullen exterieur en interieur zij aan zij gaan. Door steeds onze lat hoog te leggen ligt onze ‘standaard’ boven standaard. De focus leggen we op een hoge woonkwaliteit met een uitzonderlijke afwerkingsgraad.

Rustig en toch gigantisch goed bereikbaar.
De verbinding tussen de weilanden aan de ene zijde en het centrum anderzijds maakt deze locatie zo uniek. Delicatessezaken, winkels, scholen en sportgelegenheden, wandel- en fietsroutes op zeer korte afstand. Een uitstekende bereikbaarheid naar Gent en Antwerpen via de E17.

Natuurlijk licht en ruimte.
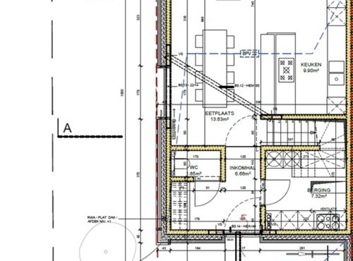
Luxueuze woningen vragen om een fijne indeling. U betreedt woning lot 6A via de inkomdeur achter de tuinmuur. Vanzelfsprekend komt u terecht in de inkomhal met gastentoilet en vestiairemogelijkheden. Ook is er een praktische was-berging. Eens in de open keuken en de eetkamer heeft u zicht op de zijtuin. Een zeer open keukenruimte die u met de nodige eigenheid kan ontwerpen. De zitruimte hebben zicht op de groene achtertuin die toegankelijk is via kamerhoge raampartijen.

Comfort en aangenaam vertoeven.
De nachthal op de eerste verdieping geeft toegang tot vijf verschillende ruimtes. Drie fijne slaapkamers, waarvan één master bedroom met directe toegang naar de private badkamer. Verder is er nog een tweede badkamer en een apart toilet.

Duurzaam en energie-efficiënt wonen.
Vier woningen met de nodige privacy waarbij meer dan rekening wordt gehouden met uw hedendaags wooncomfort.
Alle woningen worden uitgerust met een lucht-water warmtepomp, vloerverwarming en koeling, een ventilatiesysteem type D en zonnepanelen.

Oor naar het ganse verhaal van Project Four-H? Spreek af met de gepassioneerde bestuurder om de plannen, de alleszeggende maquette en het lastenboek in te kijken.

info@dmbuild.be
+32 (0)473 37 05 69
www.dmbuild.be

Lot 6A van Project Four-H


Interesse in dit pand? Wacht niet tot het te laat is.

Contacteer ons vandaag nog voor een bezoek of meer info.
Bezorg ons uw gegevens of bel 03 775 58 00.

Voornaam (*)
Naam (*)
E-mail (*)
Telefoon (*)
Vraag of opmerking (*)