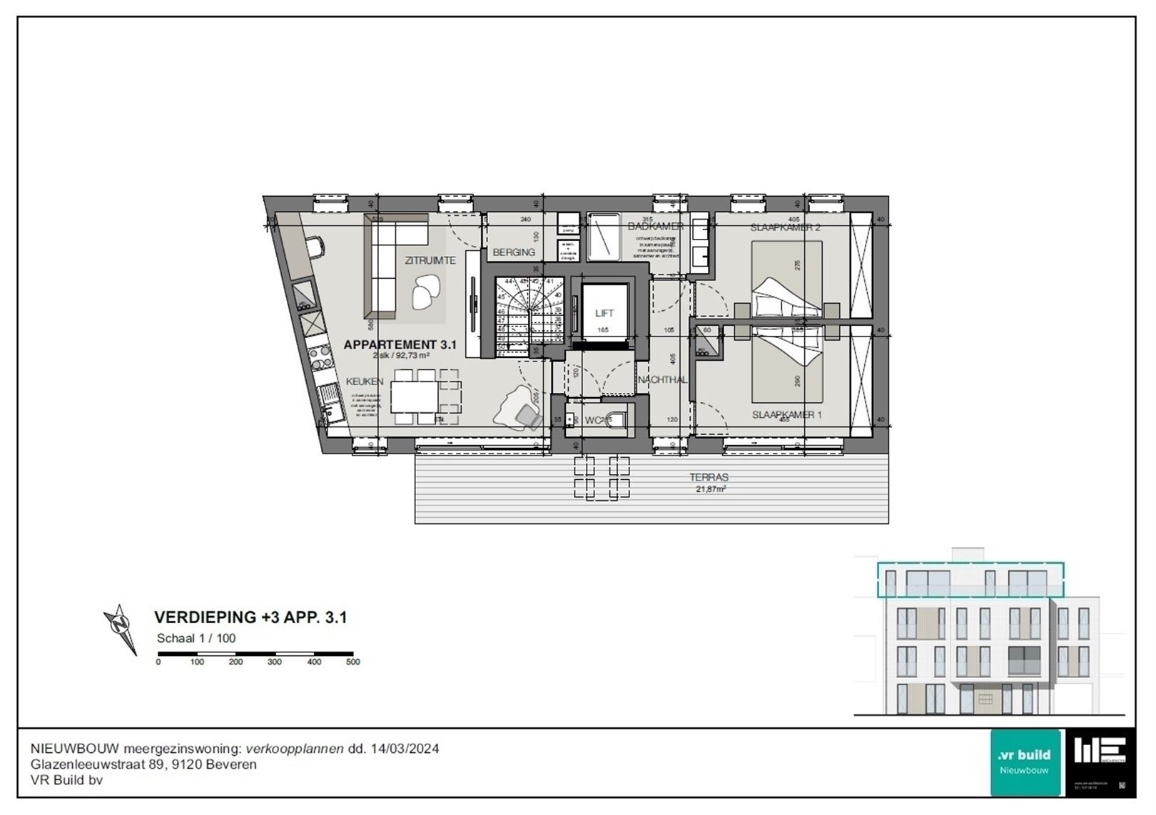
Penthouse 3.1 van residentie Léon in Beveren

Ref 3891
Glazenleeuwstraat 893.1, 9120 BEVEREN-KRUIBEKE-ZWIJNDRECHT € 360.000
Bouwjaar 2024
Bewoonbare oppervlakte 92.73 m²
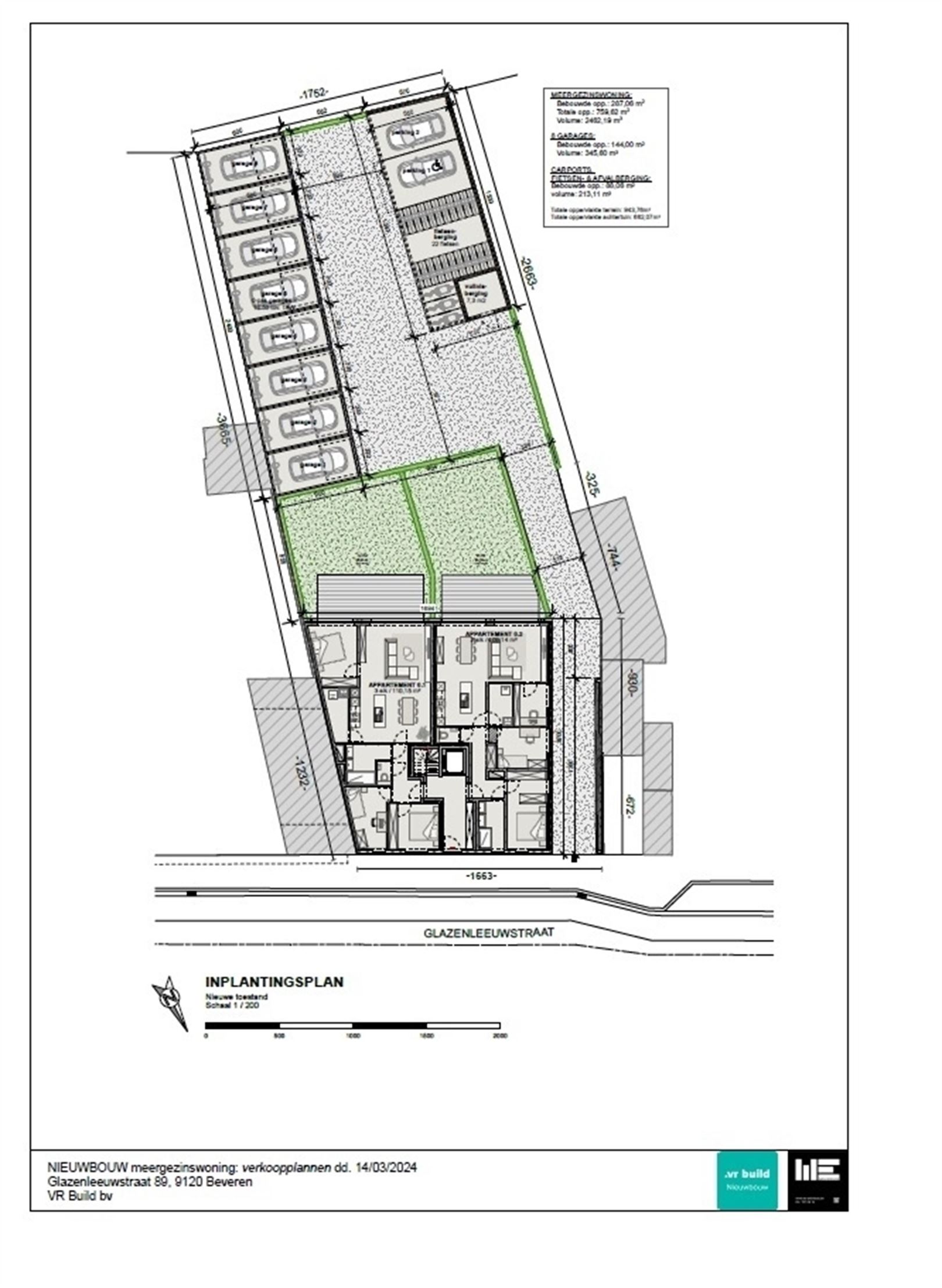
Terrein oppervlakte 956 m²

Meer eigenschappen

Type Gesloten
Orientatie achtergevel Zuidoost
Staat Nieuwbouw
Elektriciteitskeuring Ja, conform AREI
Verwarming Vloerverwarming
Dak Plat dak
Beglazing Dubbel
Bouwvergunning Ja
Stedenbouwkundige bestemming Woongebied
Verkavelingsvergunning Ja
Dagvaarding Niet van toepassing
Voorkooprecht Niet van toepassing
Risico voor overstromingen Nee

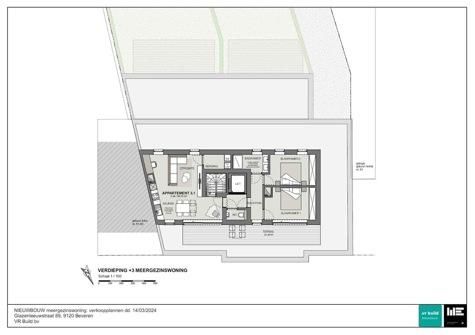
Deze penthouse is als enige appartement van dit project gelegen op de derde verdieping en maakt deel uit van residentie Léon gelegen te Beveren Glazenleeuwstraat met 8 wooneenheden. Dit pand beschikt over een groot privaat terras. U heeft toegang tot algemene fietsenberging en gemeenschappelijke bergruimte.

Via de algemene inkomhal per trap of met de lift komt u rechtstreeks terecht in het appartement. De indeling van het appartement is als volgt: U betreedt het appartement via de inkomhal met apart toilet. Verder door betreedt u de naar eigen smaak in te richten keuken, met aangrenzende bergruimte en bureaumogelijkheden, en leefruimte met toegang tot het enorme terras. Op de nachthal bevinden zich nog twee ruime slaapkamers en een badkamer

Het gehele project dient nog opgericht te worden, u kan dus nog steeds alle keuzes zelf maken.
Ook heeft u de mogelijkheid om een achterliggende garagebox of carport aan te kopen.

Nog enkele troeven van dit appartement: Vloerverwarming met lucht/water warmtepomp, videofoon, lift aanwezig met penthouse liftsturing, gemeenschappelijke berging en fietsenstalling, een laag energiepeil conform de geldende normen. Als we spreken over de prijs is dat exclusief btw, zonder registratie- en notariskosten! De plannen & lastenboek zijn op afspraak en zeer vrijblijvend te bekijken.

Penthouse 3.1 van residentie Léon in Beveren 6% BTW


Interesse in dit pand? Wacht niet tot het te laat is.

Contacteer ons vandaag nog voor een bezoek of meer info.
Bezorg ons uw gegevens of bel 03 775 58 00.

Voornaam (*)
Naam (*)
E-mail (*)
Telefoon (*)
Vraag of opmerking (*)