Rechtse villa van project Patershoek in Sint-Niklaas

Ref 4081
Patershoek 71, 9100 SINT-NIKLAAS € 725.000
Bouwjaar 2026
Bewoonbare oppervlakte 215.5 m²
Terrein oppervlakte 1285 m²

Meer eigenschappen

Type Open
Orientatie achtergevel Zuidoost
Staat Nieuwbouw
Elektriciteitskeuring Ja, conform AREI
Verwarming Vloerverwarming
Dak Plat dak
Ramen Pvc
Beglazing Dubbel
Bouwvergunning In aanvraag
Stedenbouwkundige bestemming Woongebied
Verkavelingsvergunning Ja
Dagvaarding Niet van toepassing
Voorkooprecht Nee
Risico voor overstromingen Nee

Moderne woning die deel uitmaakt van het project Patershoek gelegen te Sint-Niklaas met 2 wooneenheden. We hebben het over de rechtse villa. U beschikt over een achterliggend terras met ruime tuin en uitzicht op het groen.

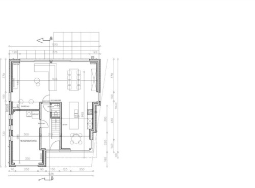
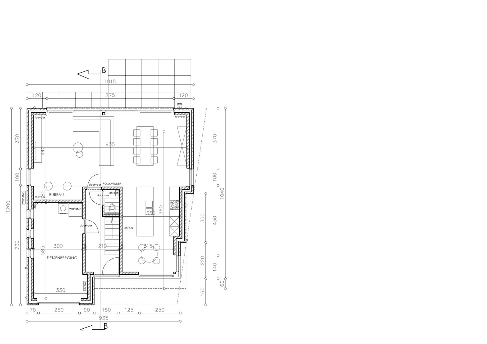
De indeling van het pand is als volgt: U betreedt de woning via de inkomhal met apart toilet en rechtstreekse toegang tot de ruimtelijke inpandige fietsenberging. Verder door komt u terecht in de leefruimte met plaats voor een thuiskantoor, de eethoek en een ruime open keuken met ontbijtkoek. Aan de achtergevel is er een enorm schuifraam met zicht op de tuin.

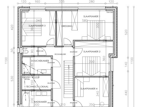
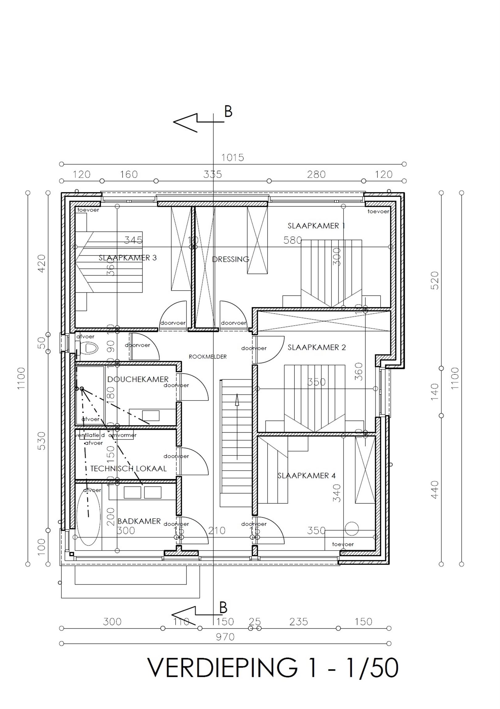
Op de eerste verdieping zijn er vier slaapkamers, waarvan één slaapkamer met ruime dressing. Vier slaapkamers vraagt om twee badkamers uiteraard. Verder is er nog een apart toilet en een technische berging.

Deze woning dient nog opgericht te worden, u kan dus nog steeds alle keuzes zelf maken.

Nog enkele troeven van deze woning: Vloerverwarming met lucht/water warmtepomp, een laag energiepeil conform de geldende normen. Als we spreken over de prijs is dat exclusief btw, zonder registratie- en notariskosten! De plannen & lastenboek zijn op afspraak en zeer vrijblijvend te bekijken.

Verlaagd btw-tarief van 6% mogelijk!

Rechtse villa van project Patershoek in Sint-Niklaas
6% BTW


Interesse in dit pand? Wacht niet tot het te laat is.

Contacteer ons vandaag nog voor een bezoek of meer info.
Bezorg ons uw gegevens of bel 03 775 58 00.

Voornaam (*)
Naam (*)
E-mail (*)
Telefoon (*)
Vraag of opmerking (*)