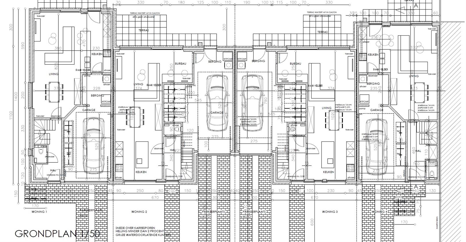
Woning 1 van Project Velle

Ref 4105
Velle 551, 9140 TEMSE € 530.000
Bouwjaar 2026
Bewoonbare oppervlakte 221.72 m²
Terrein oppervlakte 488 m²

Meer eigenschappen

Type Halfopen
Orientatie achtergevel Zuidoost
Staat Nieuwbouw
Elektriciteitskeuring Nog niet aangevraagd
Verwarming Vloerverwarming
Dak Zadeldak (Pannen)
Ramen Pvc
Beglazing Dubbel
Bouwvergunning Nog niet aangevraagd
Stedenbouwkundige bestemming Nog niet aangevraagd
Verkavelingsvergunning Nog niet aangevraagd
Dagvaarding Nog niet aangevraagd
Voorkooprecht Nog niet aangevraagd
As-builtattest Ja

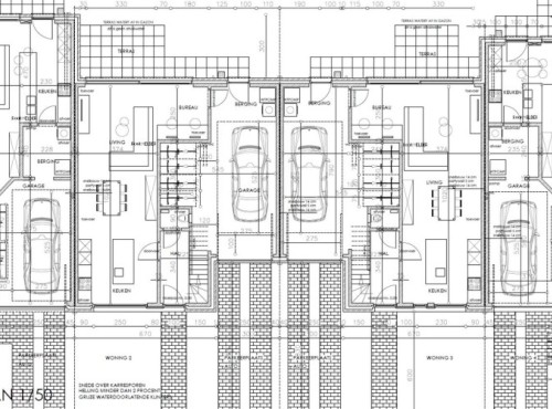
Halfopen nieuwbouwwoning die deel uitmaakt van het project Velle gelegen te Temse met 4 wooneenheden. We hebben het over de meest linkse halfopen bebouwing. U beschikt over een achterliggend terras met private tuin en een inpandige garage.

De indeling van het pand is als volgt: U betreedt de woning via de inkomhal met vestiairemogelijkheden en een gastentoilet. Verder door komt u terecht in de eethoek, de open keuken en de living. Aan de achtergevel is er een enorm schuifraam met zicht op de tuin.

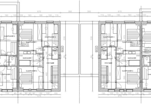
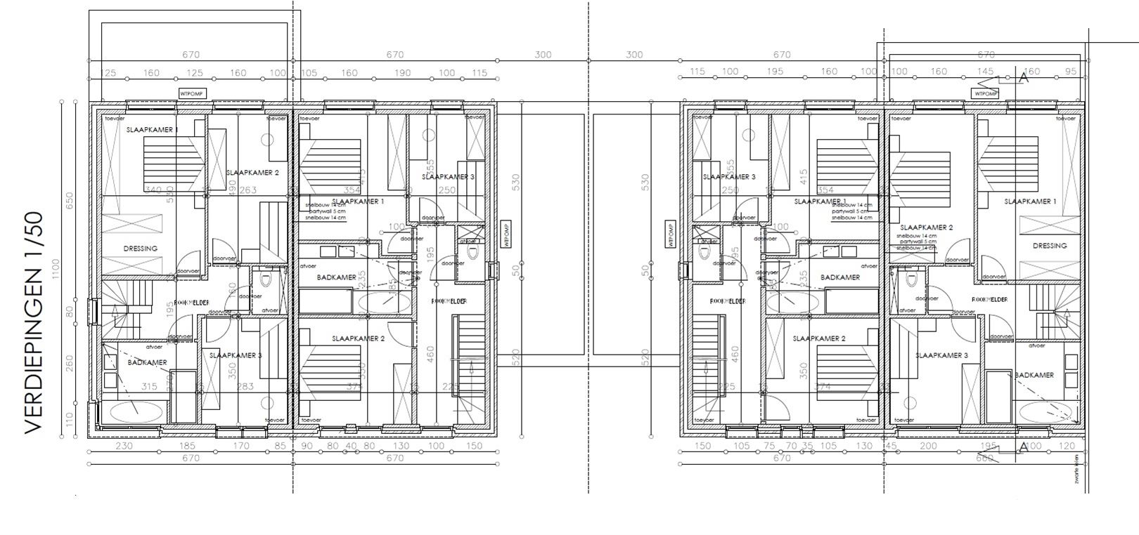
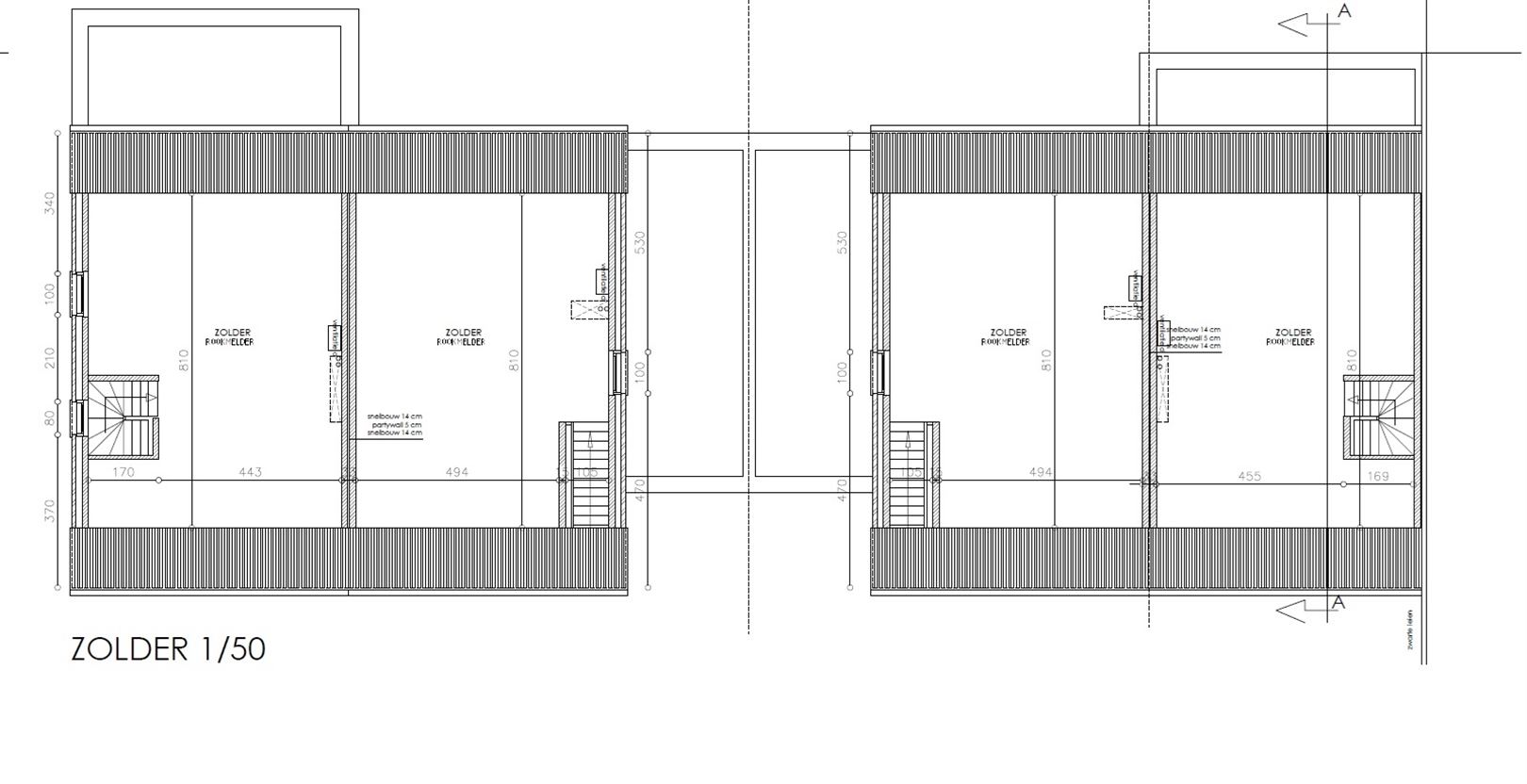
Op de eerste verdieping zijn er drie slaapkamers, waarvan twee grotere slaapkamers. Verder is er nog een apart toilet en een badkamer voorzien. Op de tweede verdieping bevindt zich de zolder. Die uiteraard kan omgetoverd worden tot extra slaapkamers.

Deze woning dient nog opgericht te worden, u kan dus nog steeds alle keuzes zelf maken.
Nog enkele troeven van deze woning: Vloerverwarming met lucht/water warmtepomp, een laag energiepeil conform de geldende normen. Als we spreken over de prijs is dat exclusief btw, zonder registratie- en notariskosten! De plannen & lastenboek zijn op afspraak en zeer vrijblijvend te bekijken.

Woning 1 van Project Velle 6% BTW


Interesse in dit pand? Wacht niet tot het te laat is.

Contacteer ons vandaag nog voor een bezoek of meer info.
Bezorg ons uw gegevens of bel 03 775 58 00.

Voornaam (*)
Naam (*)
E-mail (*)
Telefoon (*)
Vraag of opmerking (*)