Modern appartement met twee slaapkamers

Ref 3609
Steendorpsebaan 2A, 9150 BAZEL € 800 /maand
Bouwjaar 2017
Bewoonbare oppervlakte 80.97 m²

Meer eigenschappen

Type Gesloten
Orientatie achtergevel Zuidwest
Staat Instapklaar
EPC 98.13 kWh/m²
E-peil 63
Verwarming Vloerverwarming
Dak Plat dak
Ramen Pvc
Beglazing Dubbel
Risico voor overstromingen Nee

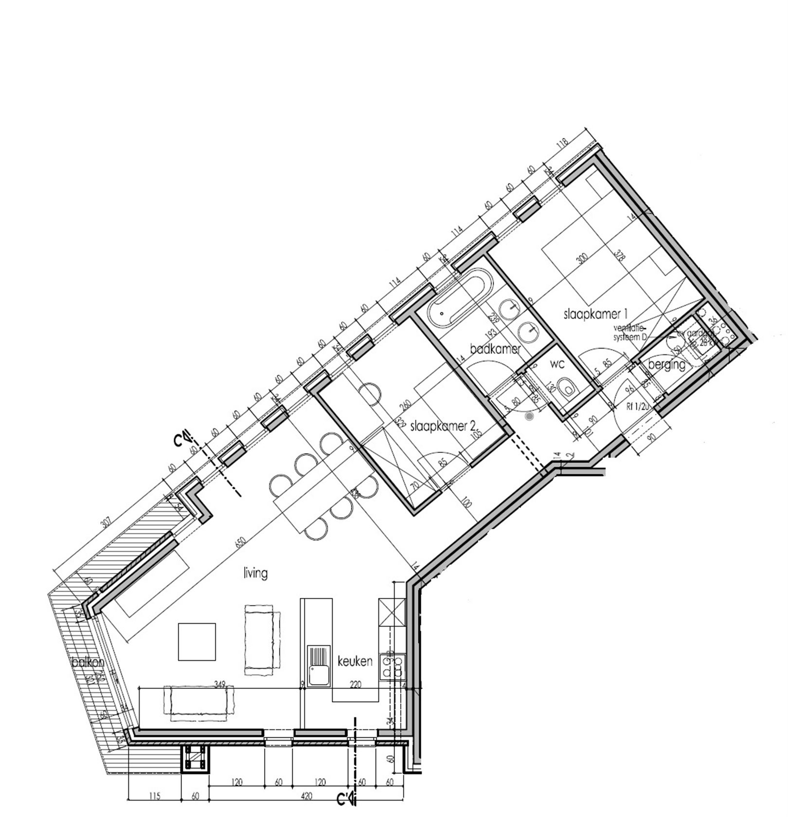
Dit appartement is gelegen op de eerste verdieping in Bazel. U beschikt over een terras, een garage en toegang tot de fietsenstalling en vuilnisberging.

U betreedt het appartementencomplex via de algemene inkomhal, zowel via de lift als via de trap bereikt u de inkomdeur van het appartement.

De indeling van het appartement is als volgt: U betreedt het appartement via de inkomhal met apart toilet en berging. Verder is er de open ingerichte keuken, voorzien van alle nodige toestellen en kookeiland. Aansluitend is er de living en eetkamer met toegang tot het noord oost gericht terras. Op de nachthal bevinden zich twee slaapkamers en een ingerichte badkamer met lavabomeubel, spiegelkast en een douche.

Nog enkele troeven van dit appartement: Vloerverwarming, nieuwbouw, hoogwaardige afwerking, verlichtingsarmaturen voorzien, volledig geschilderd, garage, algemene kosten €60/maand, laag E-peil en het appartement is vrij vanaf heden.
Interesse? Aarzel zeker niet om ons vrijblijvend te contacteren.



Interesse in dit pand? Wacht niet tot het te laat is.

Contacteer ons vandaag nog voor een bezoek of meer info.
Bezorg ons uw gegevens of bel 03 775 58 00.

Voornaam (*)
Naam (*)
E-mail (*)
Telefoon (*)
Vraag of opmerking (*)