Lot 2: Gesloten bebouwing van project Mosselbank in Vrasene

Ref 3908
Mosselbank 67, 9120 VRASENE € 455.000
Bouwjaar 2024
Bewoonbare oppervlakte 182.39 m²
Terrein oppervlakte 355 m²

Meer eigenschappen

Type Gesloten
Orientatie achtergevel Noordwest
Staat Nieuwbouw
Elektriciteitskeuring Ja, conform AREI
Verwarming CV op gas
Dak Plat dak
Ramen Pvc
Beglazing Dubbel
Beerput Ja
Bouwvergunning In aanvraag
Stedenbouwkundige bestemming Woongebied
Verkavelingsvergunning Ja
Dagvaarding Niet van toepassing
Voorkooprecht Niet van toepassing
Risico voor overstromingen Nee

Deze gesloten bebouwing (lot 2) maakt deel uit van het project Mosselbank gelegen te Vrasene met 4 wooneenheden. We hebben het over de linkse gesloten bebouwing. U beschikt over een inpandige garage en achterliggende tuin.

De indeling van het pand is als volgt: U betreedt de woning via de inkomhal met apart toilet en vestiaire mogelijkheden. Verder door komt u terecht in de eetkamer, de zitplaats en open keuken met veel lichtinval en uitzicht op de tuin. Aanpalend aan de keuken is er een ruime berging die rechtstreekse toegang verleent tot de garage met extra ruimte voor fietsenstalling.
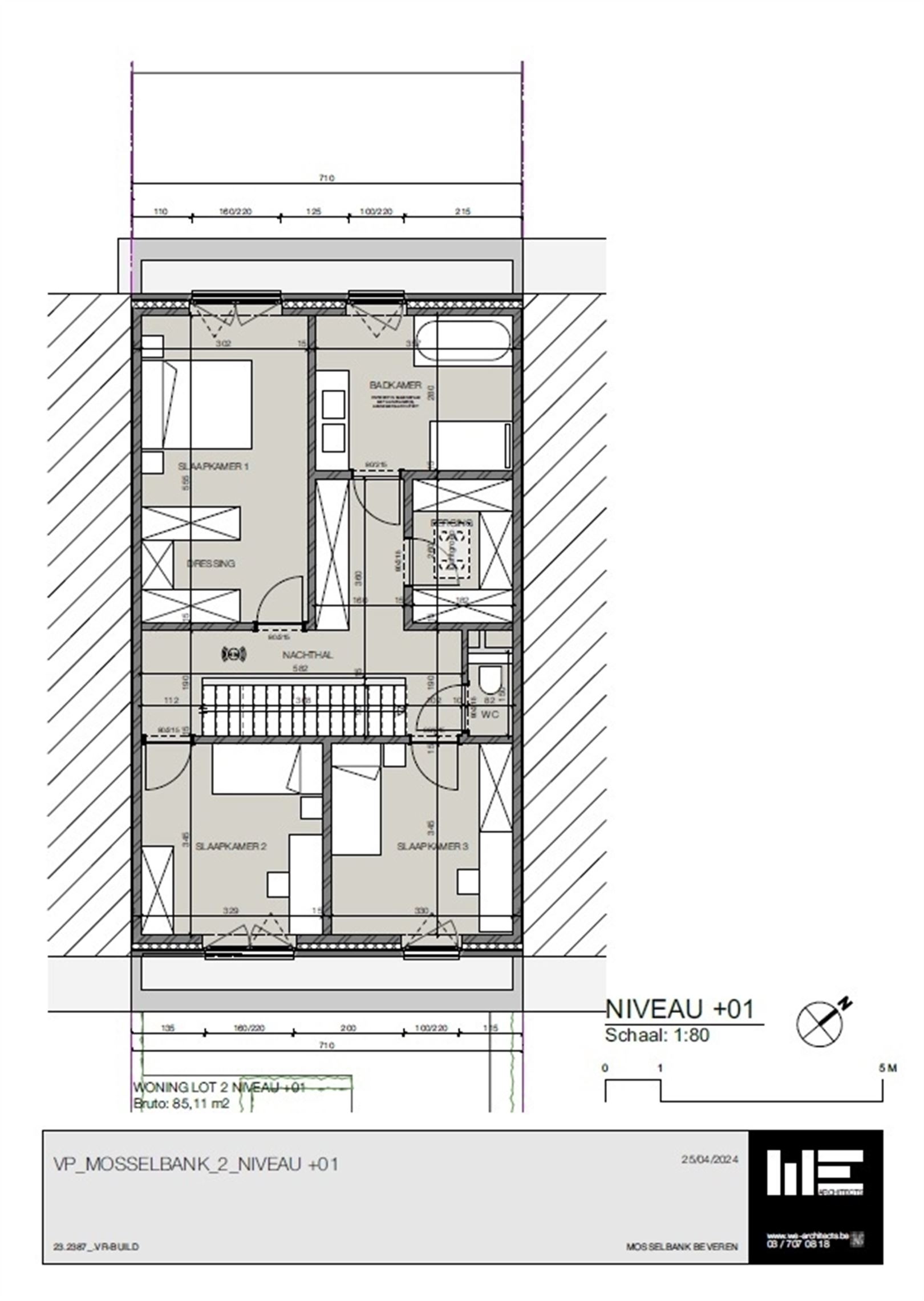
Op de eerste verdieping bevindt zicht de nachthal met bergruimte, kastruimte, apart toilet, twee slaapkamers vooraan gelegen en één slaapkamer ligt aan de achterzijde. De Badkamer is ook gelegen aan de achtergevel en nog volledig naar uw smaak in te richten.

Deze woning dient nog opgericht te worden, u kan dus nog steeds alle keuzes zelf maken.

Nog enkele troeven van deze woning: Vloerverwarming met lucht/water warmtepomp, een laag energiepeil conform de geldende normen. Als we spreken over de prijs is dat exclusief btw, zonder registratie- en notariskosten! De plannen & lastenboek zijn op afspraak en zeer vrijblijvend te bekijken.



Interesse in dit pand? Wacht niet tot het te laat is.

Contacteer ons vandaag nog voor een bezoek of meer info.
Bezorg ons uw gegevens of bel 03 775 58 00.

Voornaam (*)
Naam (*)
E-mail (*)
Telefoon (*)
Vraag of opmerking (*)