Nieuwbouw met vier slaapkamers

Ref 4146
Klapdorp 33C, 9170 SINT-PAUWELS € 435.000
Bouwjaar 2025

Meer eigenschappen

Type Halfopen
Orientatie achtergevel Noordwest
Staat Nieuwbouw
Elektriciteitskeuring Ja, conform AREI
Verwarming Vloerverwarming
Dak Zadeldak (Pannen)
Ramen Pvc
Beglazing Dubbel
Bouwvergunning Ja
Stedenbouwkundige bestemming Woongebied
Verkavelingsvergunning Ja
Dagvaarding Niet van toepassing
Voorkooprecht Niet van toepassing
Risico voor overstromingen Nee

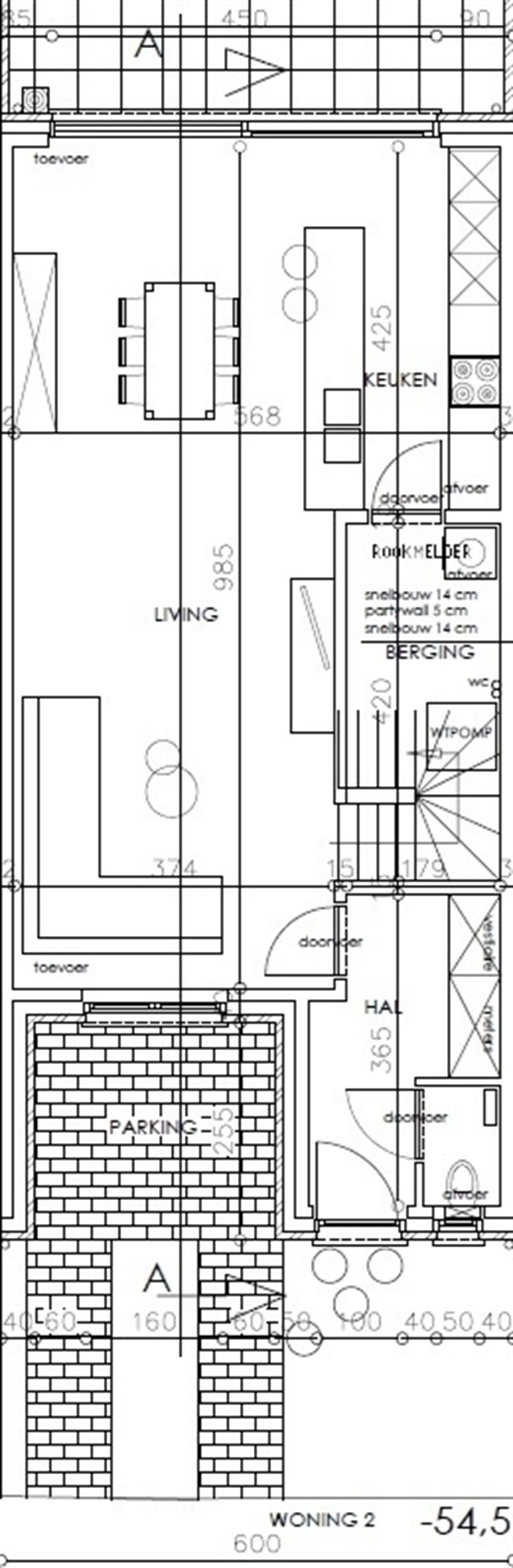
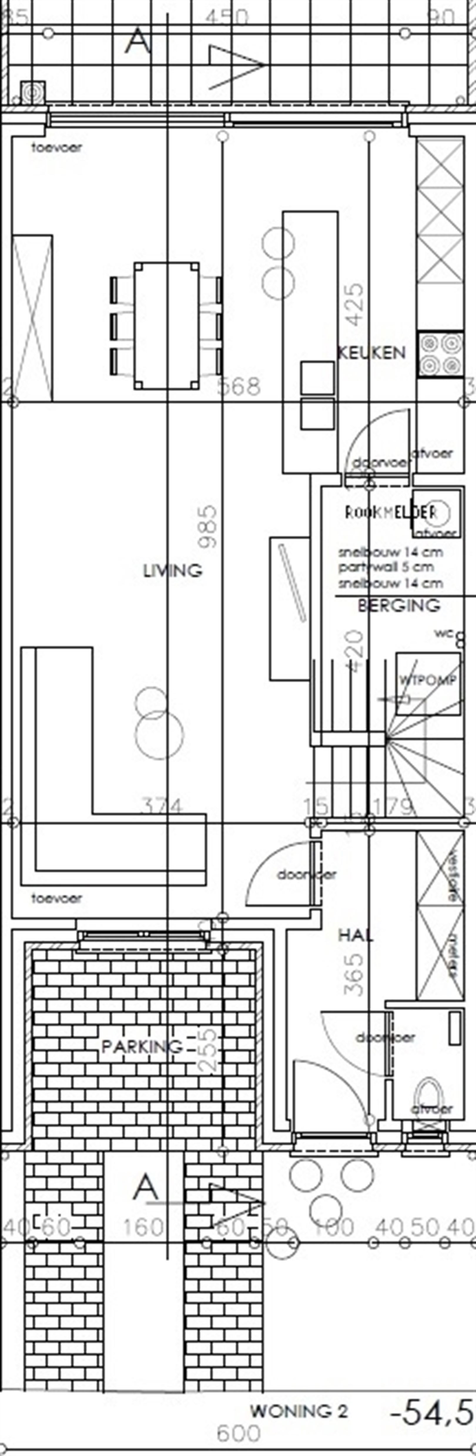
Gesloten pastorijwoning die deel uitmaakt van het project gelegen te Sint-Pauwels Klapdorp met 5 wooneenheden. We hebben het over de meest linkse gesloten bebouwing. U beschikt over een aangename tuin met terras en een overdekte parkeerplaats.De woning is momenteel nog niet volledig afgewerkt, wat wil zeggen dat alles nog naar eigen smaak en budget kan worden afgewerkt!

De indeling van het pand is als volgt: U betreedt de woning via de inkomhal met apart toilet. Verder door komt u terecht in de leefruimte met aansluitend de eetkamer en de open keuken. Vanuit de keuken heeft u zicht op de achterliggende tuin en toegang tot de berging.

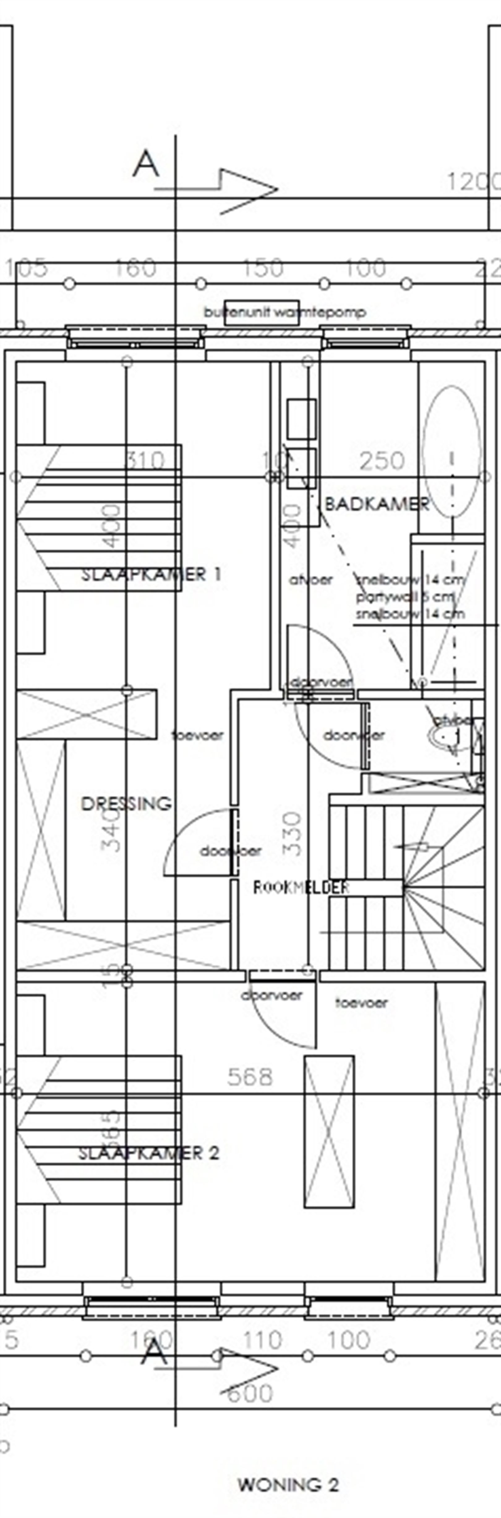
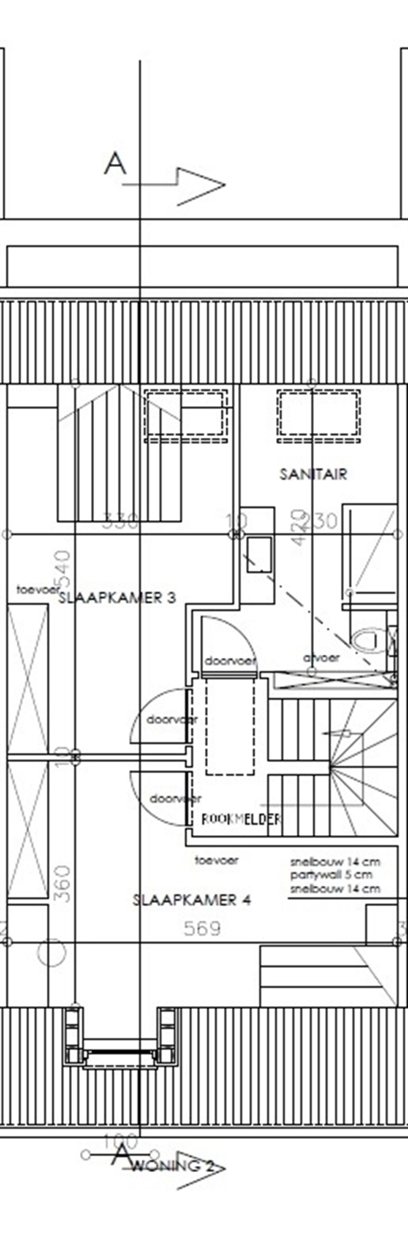
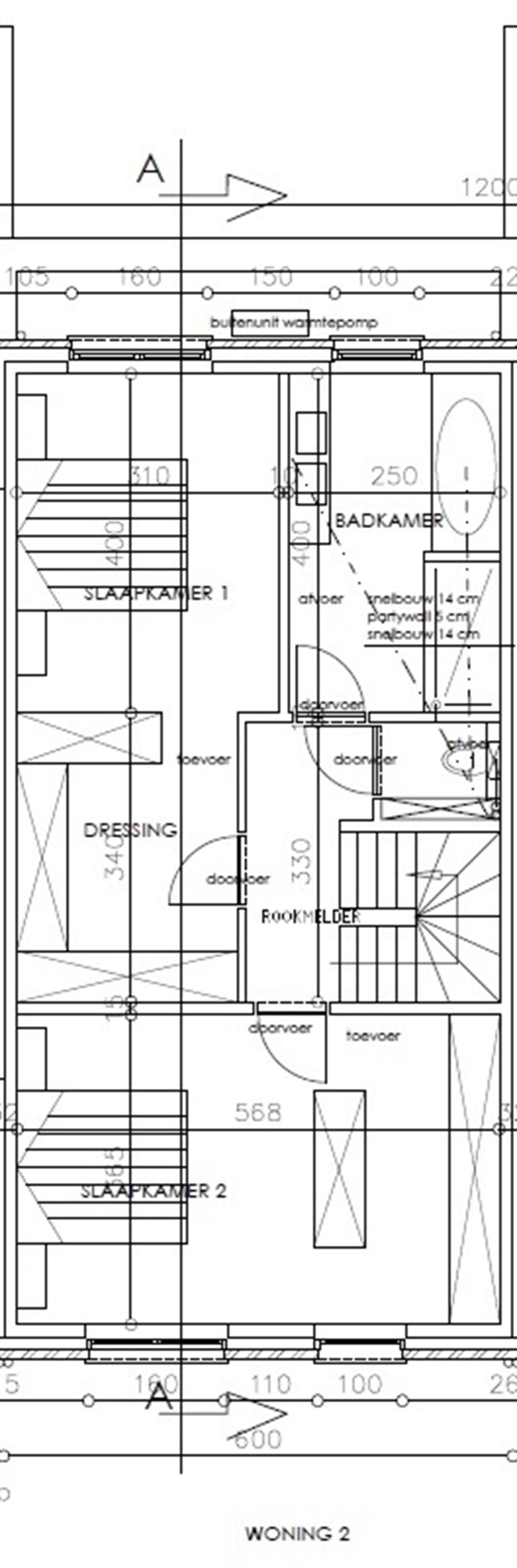
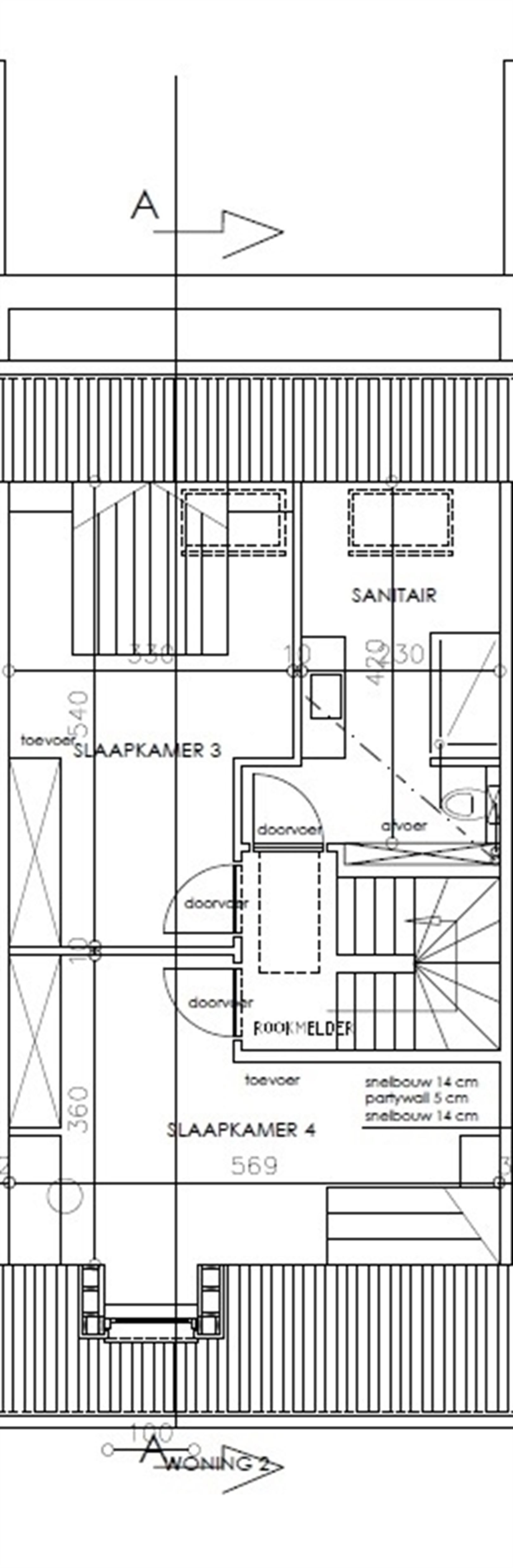
Op de eerste verdieping zijn er twee slaapkamers, waarvan één slaapkamer met ruime dressing. Verder is er nog een apart toilet en een badkamer voorzien. Op de tweede verdieping bevindt zich nog een derde en vierde slaapkamer en een badkamer.

Nog enkele troeven van deze woning: Vloerverwarming met lucht/water warmtepomp, een laag energiepeil conform de geldende normen en de woningen zijn gebouwd en zullen afgewerkt worden door MDC Algemene Bouwonderneming. Als we spreken over de prijs is dat exclusief btw, zonder registratie- en notariskosten! De plannen & lastenboek zijn op afspraak en zeer vrijblijvend te bekijken.

Verlaagd btw-tarief van 6% mogelijk!

P-score A
G-score A

Nieuwbouw met vier slaapkamers 6% BTW


Interesse in dit pand? Wacht niet tot het te laat is.

Contacteer ons vandaag nog voor een bezoek of meer info.
Bezorg ons uw gegevens of bel 03 775 58 00.

Voornaam (*)
Naam (*)
E-mail (*)
Telefoon (*)
Vraag of opmerking (*)